Обяви За нас Контакти
Продава КЪЩА
област Пловдив, с. Първенец
294 999 €
576 967.89 лв.

(1 398 €, 2 734.25 лв./m2)
Не се начислява ДДС
История на цената
Коригирана в 14:31 на 23 януари, 2025 год.
Обявата е посетена 1140 пъти.
Площ:
211 m2
Двор:
320 m2
Строителство:
Тухла, 2024 г.

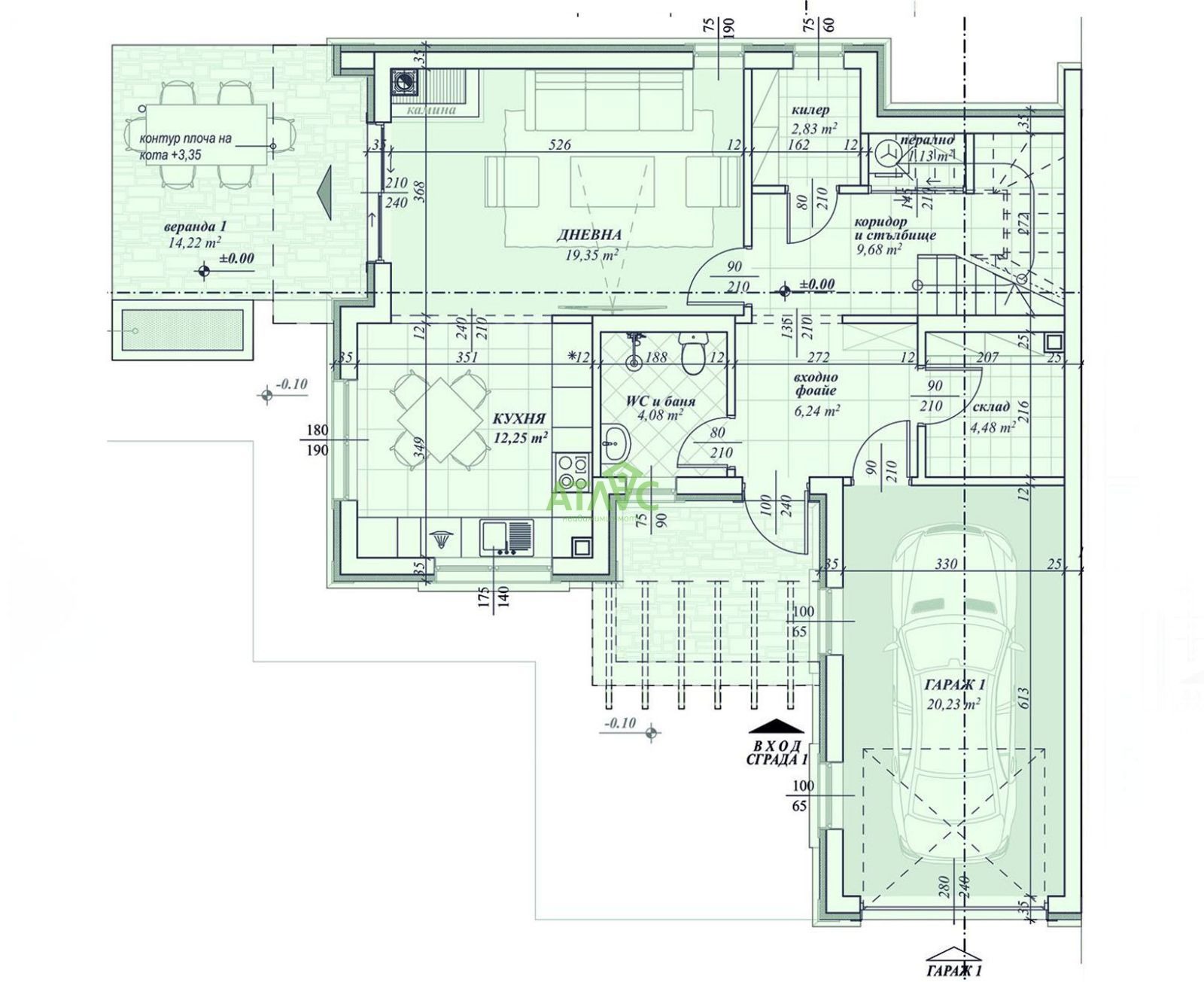
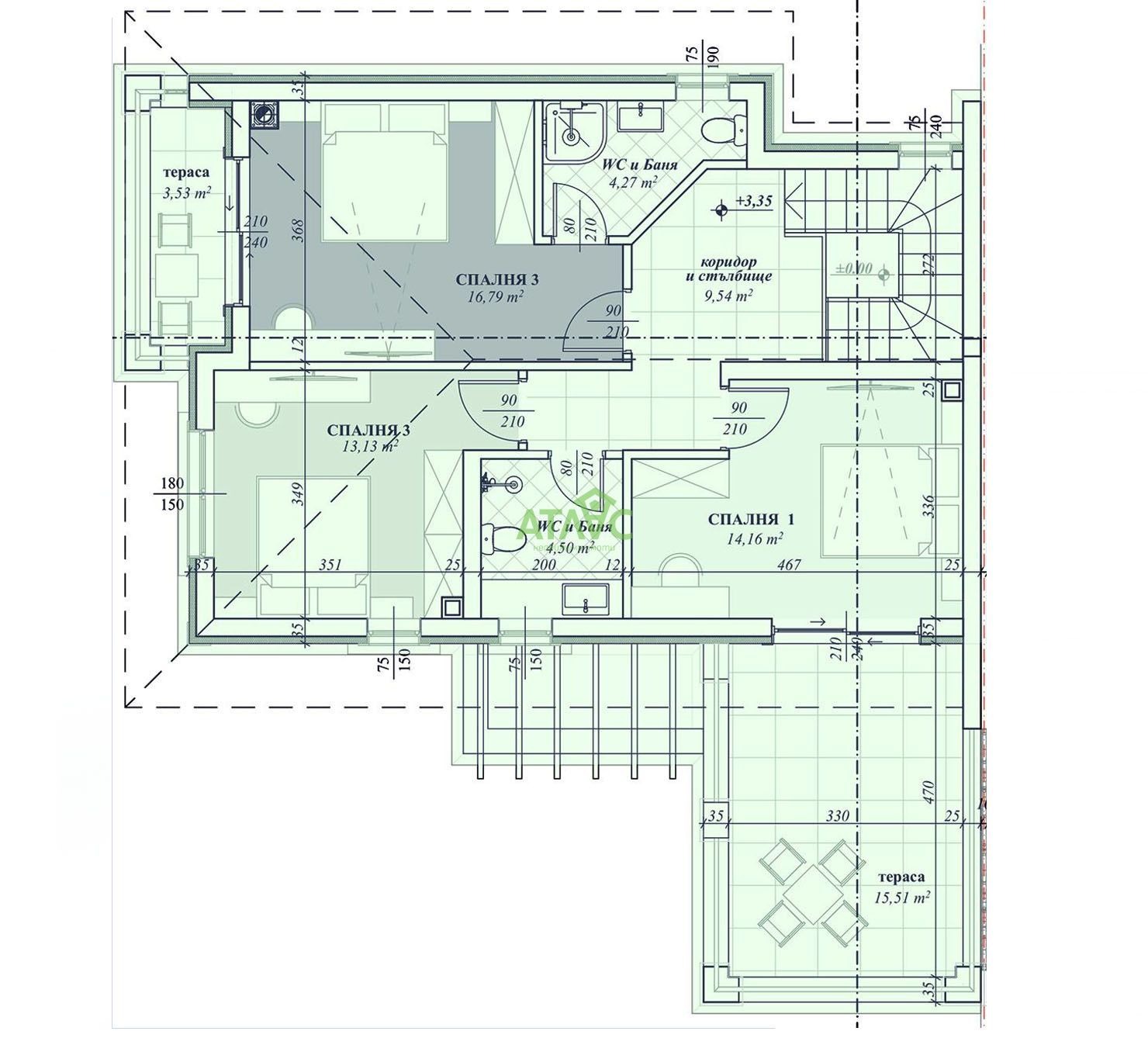
Описание на имота:


ОФЕРТА - 3001
ОСИГУРЕНО ФИНАНСИРАНЕ! 20% ПЪРВА ВНОСКА ДО АКТ 16! МОДЕРНА АРХИТЕКТУРА! ГАРАЖ! ЗАТВОРЕН КОМПЛЕКС! Имаме удоволствието да ви представим един проект, даващ възможност да притежавате свой собствен дом, на минути от града и в същото време предлагащ гледки, тишина и свеж въздух от планината. Всичко това на цената на апартамент! Разпределението на къщите е от два жилищни етажа, както и тавански етаж от 90 кв.м., който е допълнение към квадратурата. Самостоятелен двор от 320 кв.м. На етаж Едно са разположени просторна дневна с трапезария и кухненски бокс, веранда, баня с тоалетна, килер, сервизно помещение, гараж с топла връзка, антре и стълбище към етаж две. На Втори етаж са разположени три спални, една със самостоятелна баня с тоалетна и тераса, втора тоалетна на етажа и голяма тераса от 16кв.м. Проекта е стартиран, а очакваният срок за АКТ 16 е ЮНИ месец 2024г. Оказваме пълно съдействие за банково финансиране от ВСИЧКИ ВОДЕЩИ БАНКИ в страната при най-добри условия и цялостна юридическа проверка на имотите, които предлагаме! БЪДЕТЕ ПРОФЕСИОНАЛИСТИ в избора на жилище с АТЛАС НЕДВИЖИМИ ИМОТИ !
Виж всички обяви в atlasimotibg.bazar.bg или тук
Особености
Тухла
В строеж
С гараж
С паркинг
Контрол на достъпа
В затворен комплекс
За контакт:
0899425558
Агенция:
АТЛАС НЕДВИЖИМИ ИМОТИ
0899425512
АТЛАС НЕДВИЖИМИ ИМОТИ logo
Медал за прослужено време
В imot.bg от 2021 г.
atlasimotibg.imot.bg
Адрес:
област Пловдив, гр. Пловдив, ул.Димитър Талев 46
http://atlasimoti.com
ИЗПРАТИ ЗАПИТВАНЕ
ИЗПРАТИ ЗАПИТВАНЕТО

Продава КЪЩА
област Пловдив, с. Първенец
Обява: 1j171394686623588

294 999 €
576 967.89 лв.
История на цената
(1 398 €, 2 734.25 лв./m2)

Не се начислява ДДС
ЗАПАЗИ ОБЯВАТА

Местоположение: област Пловдив, с. Първенец